




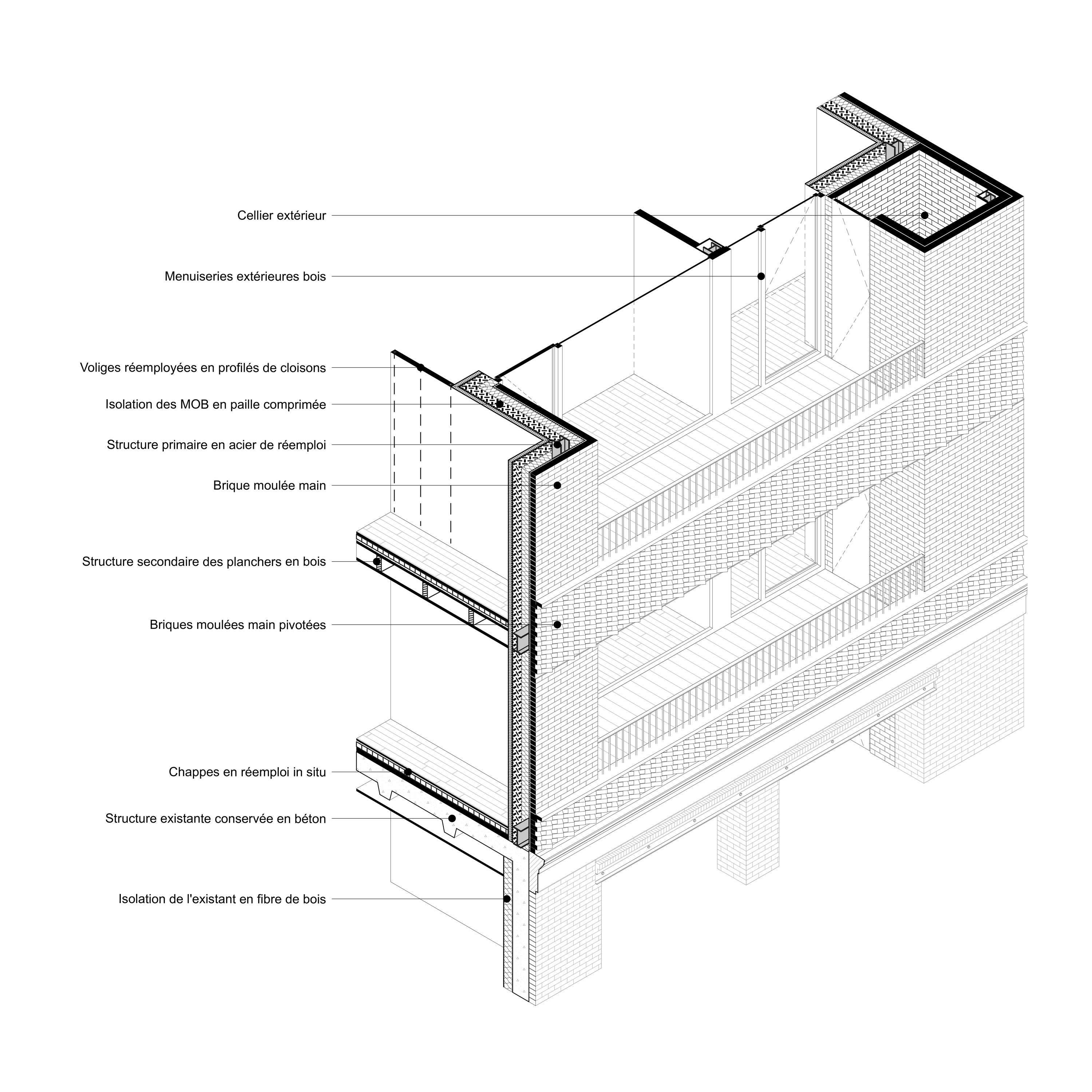
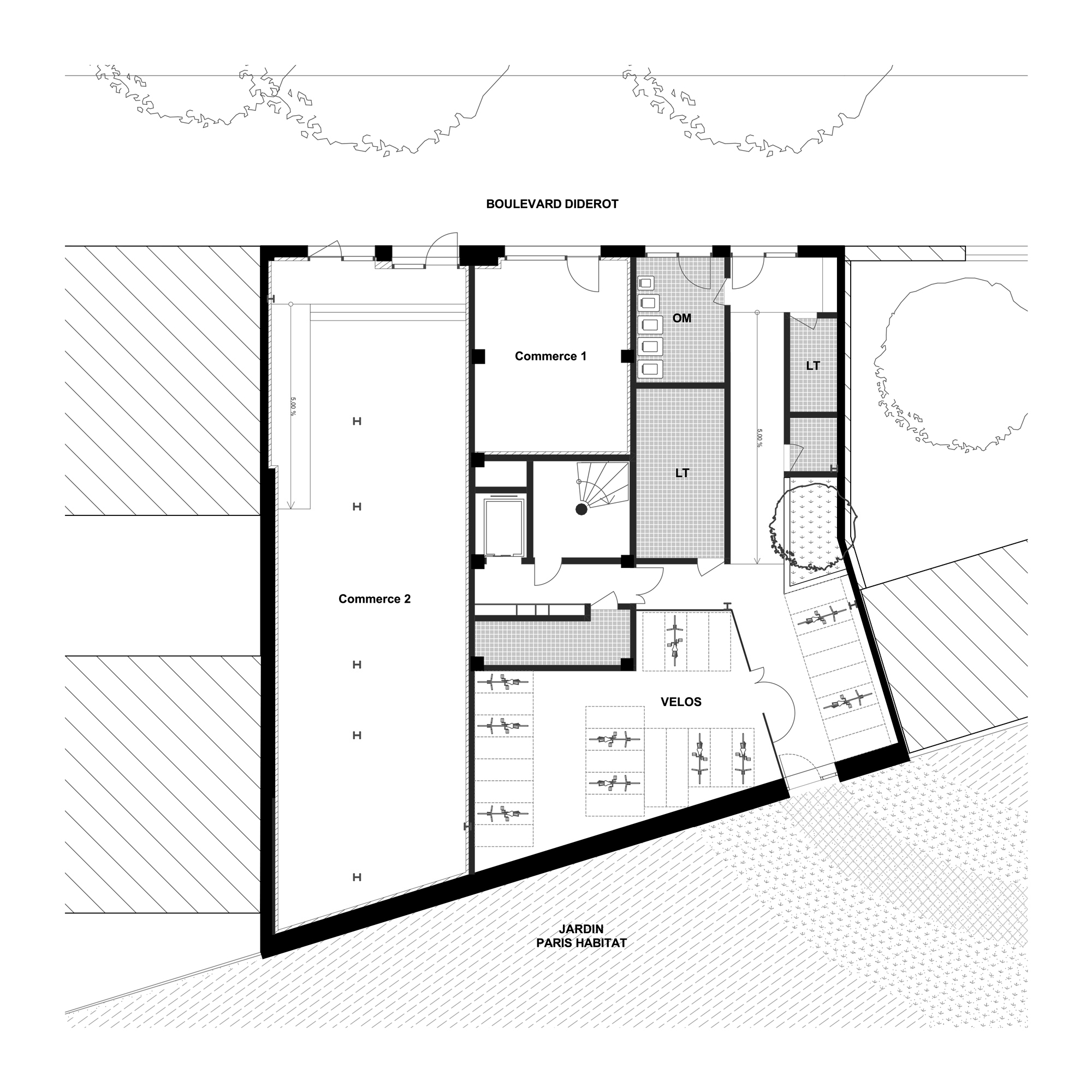
Lieu: Paris 12e - Date : 2023 - Mission : Concours - Equipe : parages. Albert&Co, Kairn, ACFI - Maîtrise d'ouvrage : Paris Habitat - Programme : Surélévation de 17 logements avec structure mixte en acier de réemploi, plancher bois et isolation paille - Budget : 3,9M€ ht - Crédits photos : Galerie Blanche
︎︎︎ p. ︎︎︎