








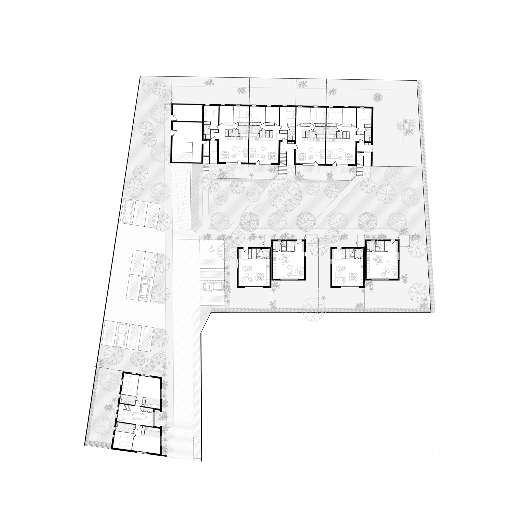
Lieu : Magny Le Hongre - Date : 2022 - Mission : 24 logements biosourcés en structure bois et isolation en ouate de cellulose comprenant 6 logements sociaux en coliving, 6 maisons individuelles et 14 logements collectifs traversants en accession -
Equipe : parages architectes, MFR architectes (mandataire), L’Atelier de l’Ours - IBA structure - Combiosol Fluides et thermique
Maîtrise d'ouvrage : Green Eco Promotion et Promogim
Surface : 1 850 m2 SDP - Budget : 3,2 M€ - Performance énergétique : RE2020 / Structure bois / biosourcé / NF HQE -
Crédits photographiques : © parages
︎︎︎ p. ︎︎︎