





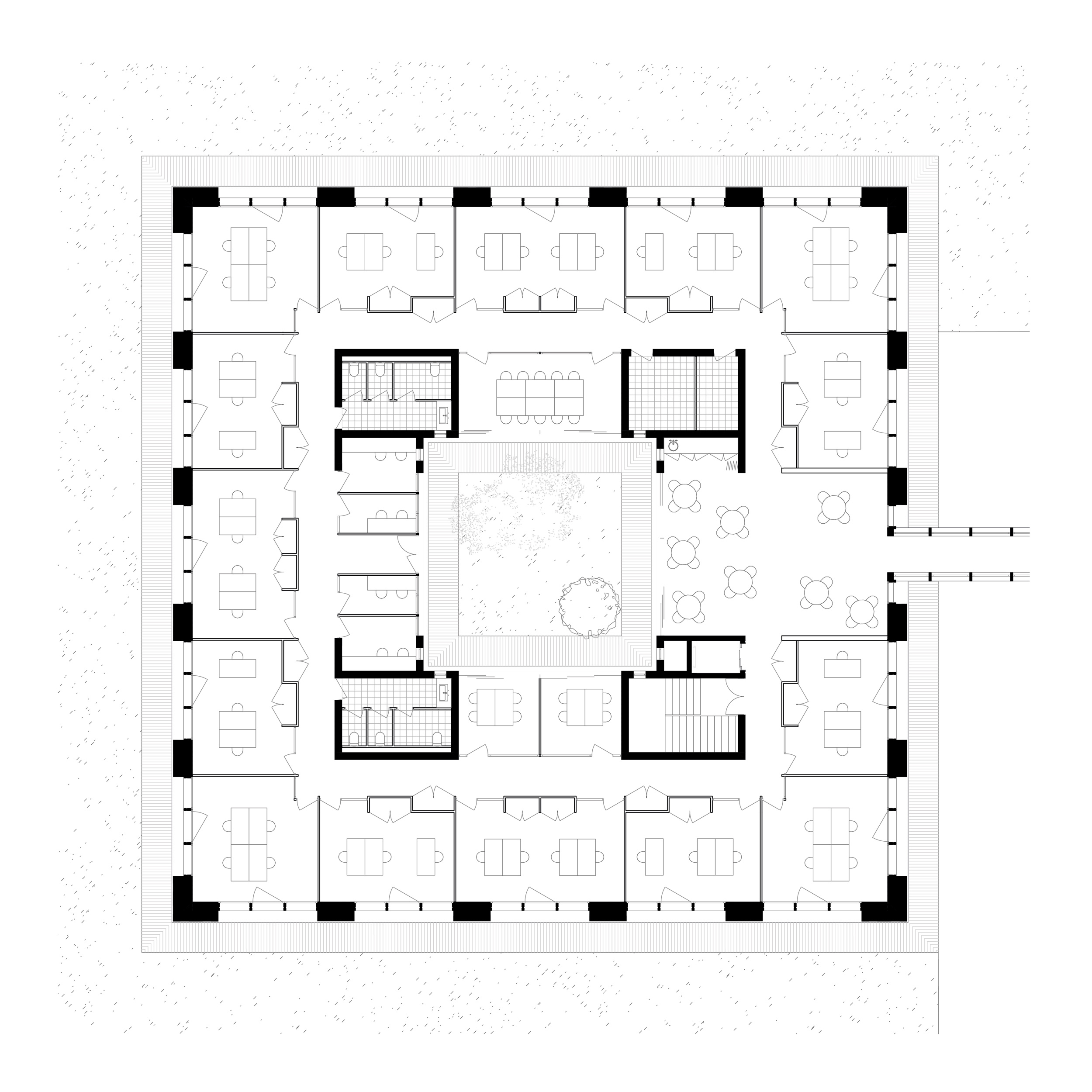
Rénovation et Extension du siège de la Com. Com.
Lieu: Montreuil Le Gast - Date : 2025 - Mission : Concours lauréat - Etudes en cours - Equipe : parages architectes mandataires - ANA BE TCE
-
Maîtrise d'ouvrage : Communauté de Communes du Val d’Ille-Aubigné - Surface : 950 m2 - Budget : 2,2 M€ - Performance énergétique : Biosourcé Niv 2 -
Passiv’Haus -
Structure bois - RE 2020 seuil 2028 - isolation paille - réemploi - Crédits images : ©bureau 504
︎︎︎ p. ︎︎︎