


Lieu : Nanterre ZAC des provinces Françaises -
Date : 2022 -
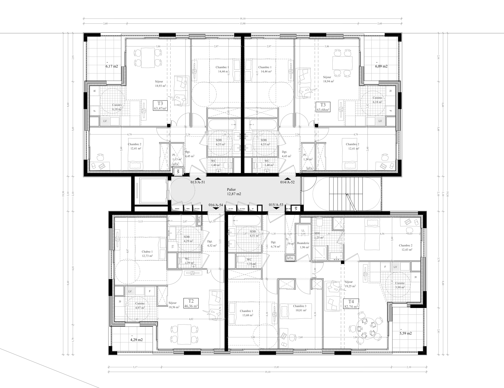
Mission : 67 logements sociaux en trois bâtiments sur un parking en superstructure le long du RER A enterré
Equipe : parages architectes avec MFR architectes (mandataire), conception réalisation avec Eiffage construction et Eiffage immo
Maîtrise d'ouvrage : Fonciere Logement
Surface : 4 850 m2 SDP -
Budget : 11,3 M€ -
Performance énergétique : RE2020 / NF HQE -
Crédits photographiques : © Paris Picture Club
︎︎︎ p. ︎︎︎