︎
parages.
lauréats 2023 - 40 under 40
info.
études.
Page en consruction.
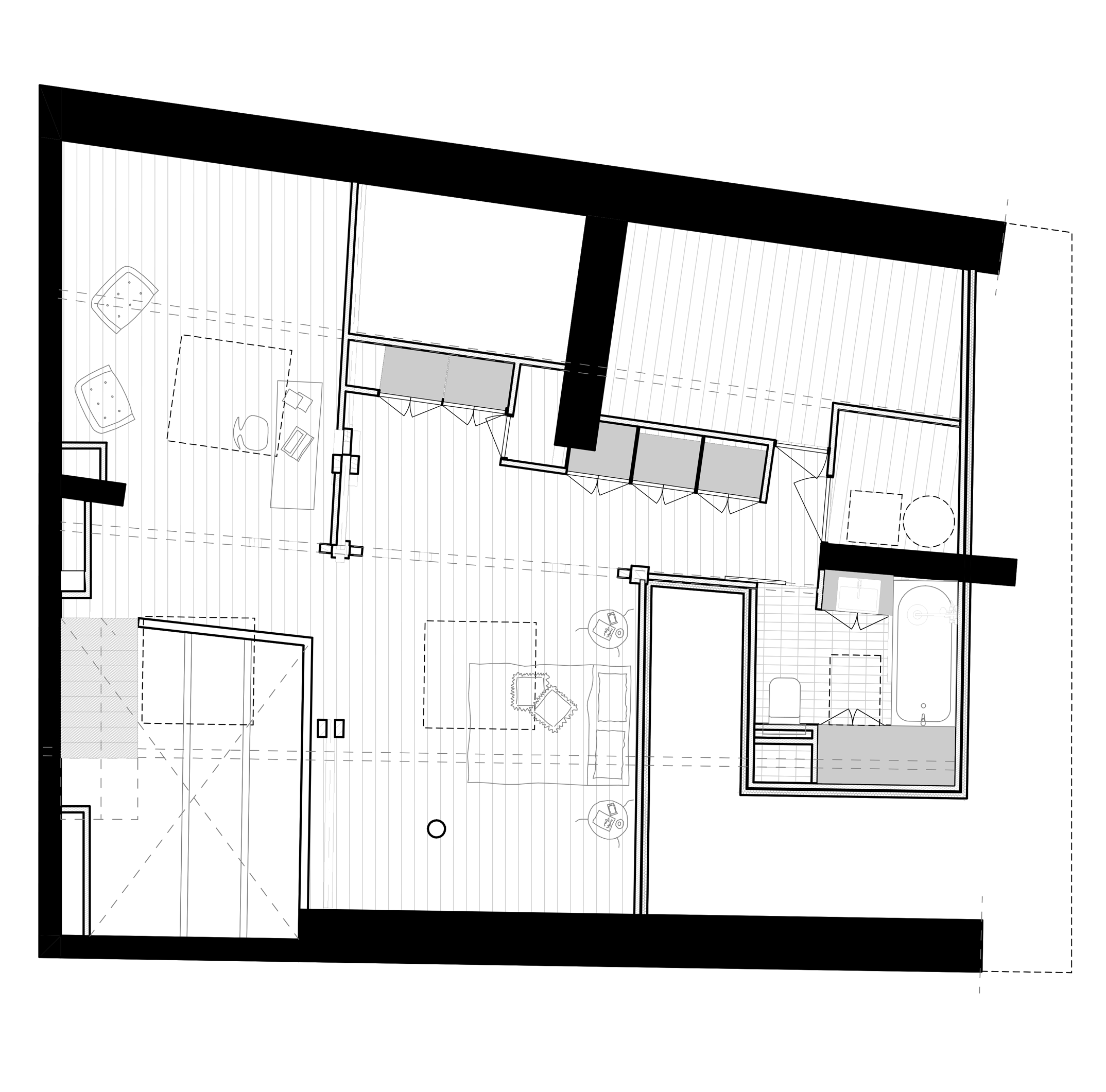
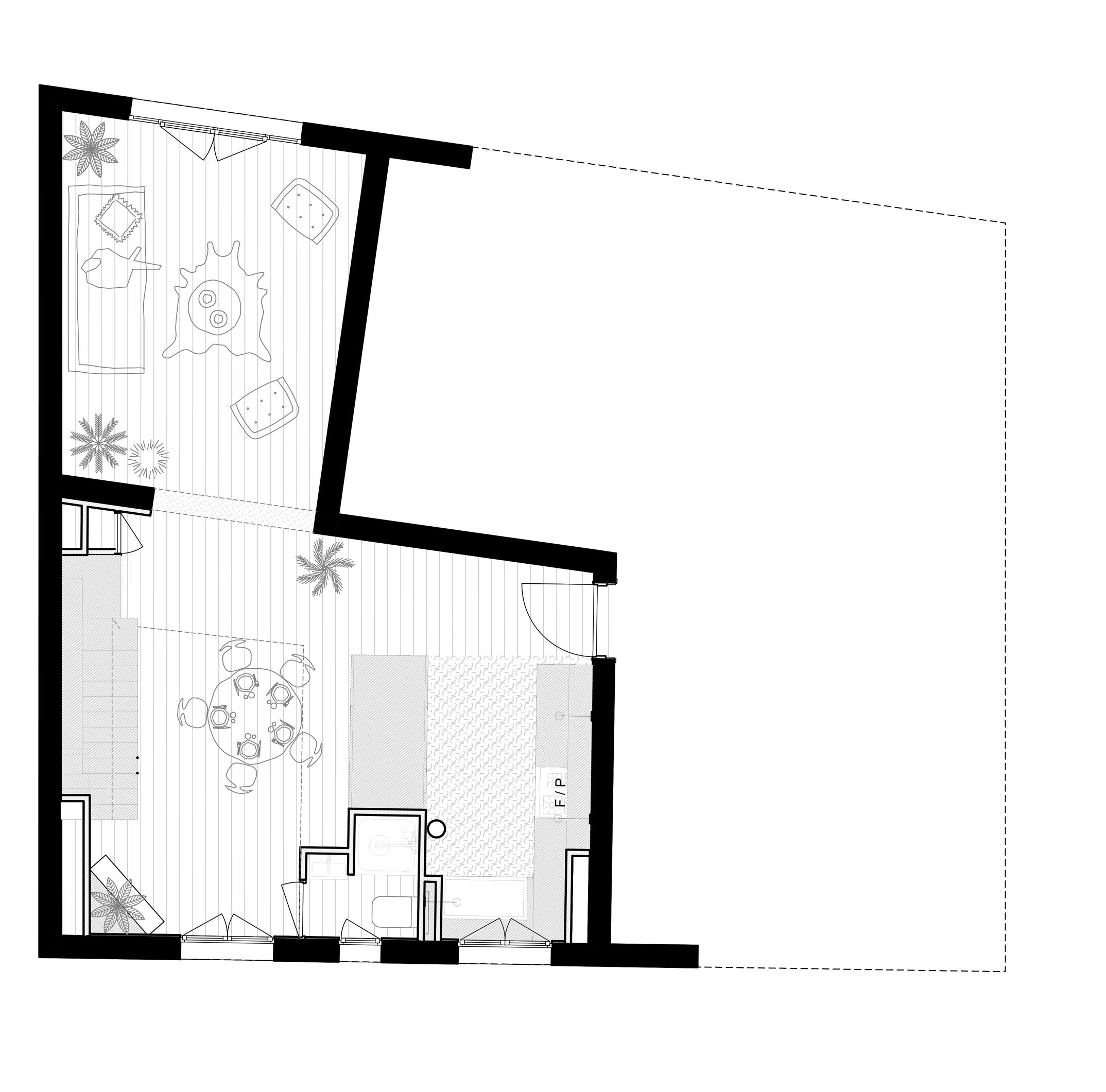
Lieu
: Pantin-
Date
: 2020 -
Mission
: Etudes + EXE -
Equipe
: parages architectes - BE structure Philippe Buchet -
Maîtrise d'ouvrage
: Privée -
Surface
: 110 m
2
-
Budget
: NC -
Crédits photographiques
: © parages.
︎︎︎
p.
︎︎︎
© parages. 2026 - Paris - Côtes d’Armor -
︎
︎